Developer
Modon
Price From
AED 4,100,000
Handover Date
Q1 2029
Property Type
Townhouses & Villas
Bedrooms
3 to 5 bedroom
Payment Plan
50 / 50
Contemporary Homes in Nawayef Village
Nawayef Village is a modern residential community on Hudayriyat Island, developed by Modon, offering stylish 3 to 5 bedroom townhouses and twin villas with contemporary architectural design. Set within a gated environment surrounded by green spaces, the community blends comfort, convenience, and lifestyle. With a flexible 50/50 payment plan and handover scheduled for Q1 2029, Nawayef Village is an ideal choice for families and investors seeking quality living in one of Abu Dhabi’s most exciting new destinations.
Nawayef Village Amenities
Nawayef Village is a secure gated community that blends modern comfort with natural beauty on Hudayriyat Island. Residents enjoy expansive green spaces, shaded walking trails, and direct access to pristine beaches.Gated Community
Green Spaces
Walking Paths
Medical Facilities
School
Beach Access
Retail Avenue
Natural Island
Nawayef Village Gallery
Experience the essence of modern island living through our curated gallery. From vibrant community spaces to elegant interiors and scenic exteriors, discover what sets Nawayef Village apart as a premier lifestyle destination on Hudayriyat Island.Nawayef Village at Hudayriyat Island – Exclusive Hillside Villas with Scenic Views
Developed by Modon Properties, Nawayef Village is a distinguished gated residential community nestled between the East and West Hills of Hudayriyat Island, Abu Dhabi. As the first townhouse offering on the island, it introduces a new standard of modern family living in a serene natural setting. Designed with a contemporary aesthetic and Mediterranean influences, Nawayef Village presents a refined collection of 3 to 5 bedroom townhouses and twin villas, combining luxury with functionality.
Nawayef Village – At a Glance
- Developer: Modon Properties
- Property Type: 3 to 5 Bedroom Townhouses & Twin Villas
- Location: Hudayriyat Island, Abu Dhabi
- Architectural Style: Contemporary / Modern
- Community Type: Gated residential community
- Handover: Q1 2029
- Payment Plan: 50/50 Flexible Plan
Architecture & Design
The residences at Nawayef Village are thoughtfully crafted to reflect modern architectural elegance while maximizing comfort for family living. Each unit features sleek lines, expansive floor-to-ceiling windows, and open-plan interiors that invite natural light and airiness. Drawing inspiration from Mediterranean and Tuscan styles, the facades incorporate earth-toned finishes, textured materials, and shaded terraces—creating a warm yet upscale atmosphere. Private gardens, rooftop terraces, and flexible interior layouts make every home ideal for entertaining or relaxed island living.
Community Highlights & Amenities
- Secure gated entry with 24/7 security
- Lush parks and landscaped open spaces
- Pedestrian-friendly walkways and jogging paths
- Community pools and leisure centers
- Retail Avenue with cafes, fine dining, and essential services
- Clubhouse, cinema, and family entertainment zones
- Close to beaches, cycling tracks, and Hudayriyat’s wellness attractions
- Proximity to schools, clinics, and recreational hubs
Luxury Modern Homes in Nawayef Village
Discover the ultimate in comfort, elegance, and functionality with Nawayef Village’s luxury modern homes, a stunning collection of 3 to 5 bedroom townhouses and twin villas nestled on Hudayriyat Island, Abu Dhabi. Designed for discerning homeowners, these residences blend sophisticated architecture with smart layouts and premium finishes.
Key Features:
- Modern Open-Plan Layout: Seamlessly integrated living, dining, and kitchen areas that are ideal for entertaining guests or enjoying relaxed family moments.
- Spacious Interiors: Generously sized bedrooms and living areas designed to provide maximum comfort and flexibility for modern families.
- High-End Finishes & Premium Materials: Every detail is thoughtfully selected from elegant flooring and sleek cabinetry to designer fixtures and contemporary lighting.
- Private Gardens & Rooftop Terraces: Select units feature landscaped outdoor areas and sun-soaked rooftop terraces, perfect for leisure, gatherings, or enjoying the island breeze.
Whether you're seeking a stylish family home or a sound long-term investment, Nawayef Village offers a unique opportunity to own a modern luxury home in one of Abu Dhabi’s most prestigious waterfront communities.
LuxSeamless Access, Endless Possibilities
Strategically positioned on Hudayriyat Island, Nawayef Park Views offers effortless access to Abu Dhabi’s most iconic landmarks and lifestyle destinations:
- 23 mins – Emirates Palace
- 33 mins – Louvre Abu Dhabi
- 30 mins – Abu Dhabi Global Financial Centre (ADGFC)
- 20 mins – Downtown Abu Dhabi
- 23 mins – Sheikh Zayed Grand Mosque
- 34 mins – Zayed International Airport
- 38 mins – New York University Abu Dhabi
- 90 mins – Downtown Dubai
Nawayef Village Hudayriyat Island – Abu Dhabi Homes for Sale
Nawayef Village offers a warm neighborhood concept of living on Hudayriyat Island. Conceived as a suburb with an environmentally considerate development, it has contemporary homes within the relaxed village setting. For those who seek connectivity, walkability and community in a well-conceived village environment, the perfect home is coming.
Nawayef Village Payment Plan
Enjoy a flexible 50/50 payment plan at Nawayef Village by Modon, with just 50% during construction and the remaining 50% on handover in Q1 2029 making luxury living on Hudayriyat Island more accessible than ever.
Nawayef Village Payment Method
We accept all the following payment methods.
Cash
Card
Cheque
Bitcoin
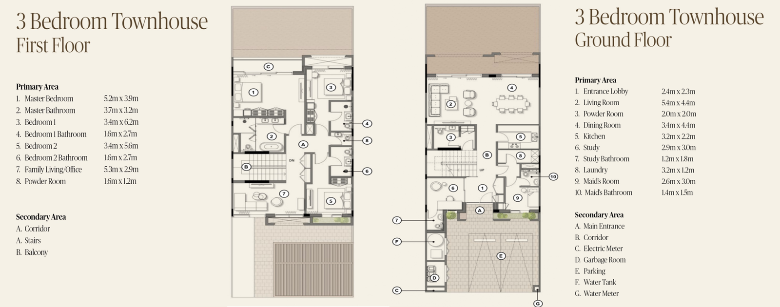
Nawayef Village Floor Plan
The floor plans at Nawayef Village are thoughtfully designed to offer functionality, flexibility, and comfort across all unit types. Ranging from 3 to 5 bedroom townhouses and twin villas, each home features well zoned living spaces that cater to modern family needs.
Nawayef Village Location & Attractions
Nawayef Village offers modern homes in one of Abu Dhabi’s most scenic and well-connected locations. With easy access to Abu Dhabi’s city center and cultural landmarks like the Sheikh Zayed Grand Mosque, Nawayef Village provides a lifestyle that balances tranquility, convenience, and connectivity.
- Al Qadi Medical Center - Dermatology & Skin Clinic - Approximately 15 mins
- Exeter medical center - Approximately 17 mins
- DNA Health & Wellness - Approximately 18 mins
- Louvre medical clinic - Approximately 21 mins
- St Joseph’s School - Approximately 17 mins
- Vision Private School - Approximately 20 mins
- The British School Al Khubairat - Approximately 18 mins
- International Community Schools - Approximately 19 mins
- Emirates Private School - Approximately 25 mins
- Cello SOL Restaurant Abu Dhabi - Approximately 12 mins
- Al Shader Restaurant and Grill - Approximately 7 mins
- Nonna Stella Osteria Restaurant - Approximately 7 mins
- Aroy Dee Thai Restaurant - Approximately 22 mins
- Al Mushrif Co-operative Society Shopping Mall - Approximately 21 mins
- Mushrif Mall - Approximately 22 mins
- Al Seef Village Mall - Approximately 26 mins
- Abu Dhabi Mall - Approximately 26 mins
Nawayef Village Nearby Landmark
Nawayef Village offers residents exceptional connectivity to Abu Dhabi’s most iconic destinations. Just minutes from the majestic Sheikh Zayed Grand Mosque, this vibrant community provides seamless access to cultural, spiritual, and lifestyle landmarks across the city—making it an ideal choice for modern living on Hudayriyat Island.
FAQs
-
Where is Nawayef Village located?
It’s situated on Hudayriyat Island, Abu Dhabi, nestled between the Nawayef West and East Hills, with elevated terrain and panoramic views.
-
When is handover scheduled?
Residents can expect handover in Q1 2029.
-
What is the payment plan structure of Nawayef Village?
The flexible payment plan follows a 10/40/50 model, 10% on booking, 40% during construction, and the remaining 50% upon handover in January 2029.
-
Who is the developer behind this community?
Nawayef Village is developed by Modon Properties, an Abu Dhabi-based firm known for premium large‑scale residential projects.
-
What types of homes are available in Nawayef Village?
Nawayef Village offers 3 to 5 bedroom townhouses and twin villas, with sizes ranging from approximately 2,669 sq ft to 3,670 sq ft.
-
What amenities are provided at Nawayef Village?
Residents enjoy gated community security, parks, green spaces, walking and cycling paths, community centres, pools, boutique retail, fine dining, cinema, fitness facilities, schools, medical services, and direct beach access.
-
How close is Nawayef Village to key landmarks?
Nawaef Village is just 15 minutes to the Sheikh Zayed Grand Mosque and 25 minutes to Zayed International Airport. Saadiyat Island and ADGM are also within easy reach.